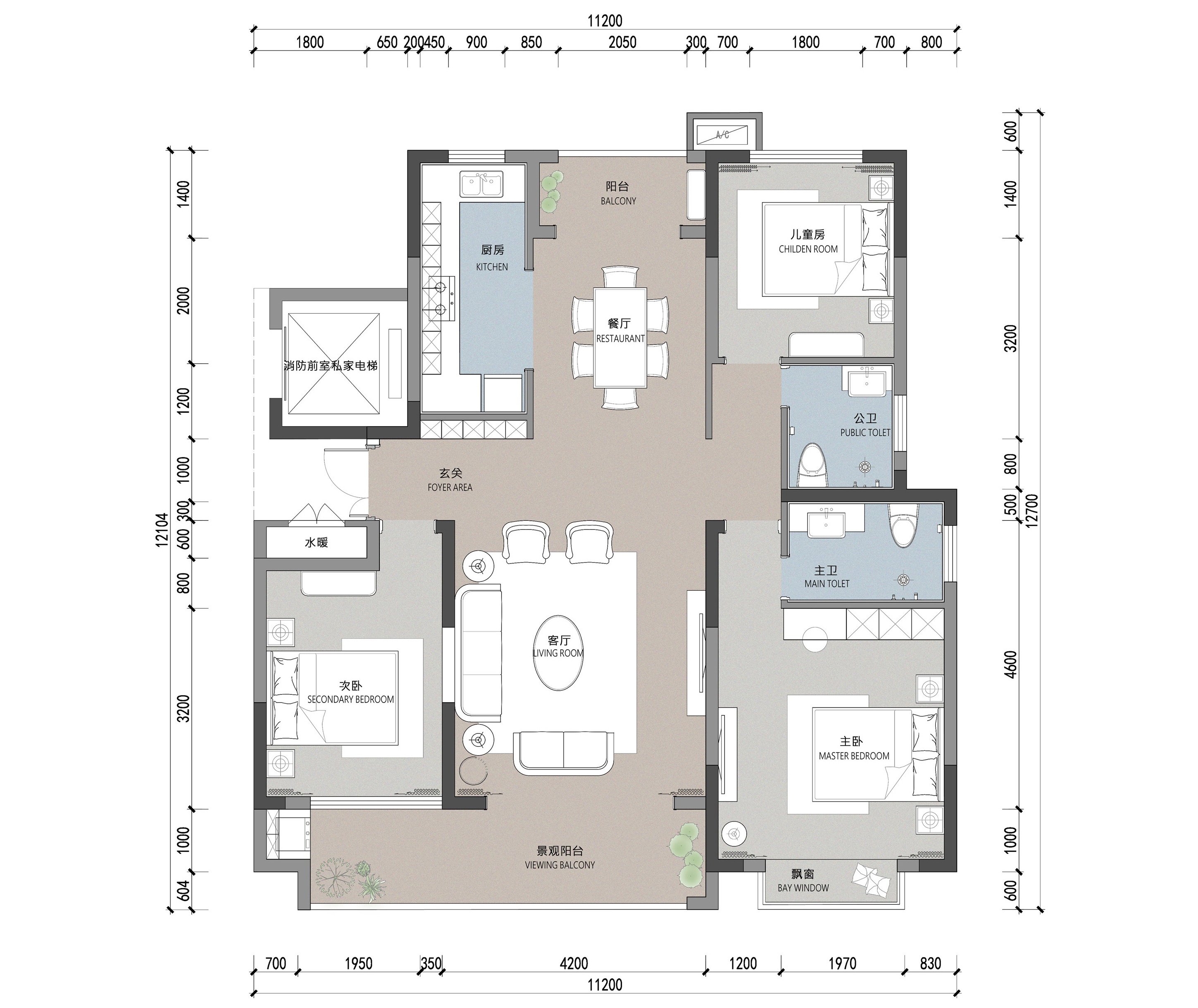
圣唐·江山樾D1户型样板间

Shengtang·Jiangshanyue D1 Type Model room