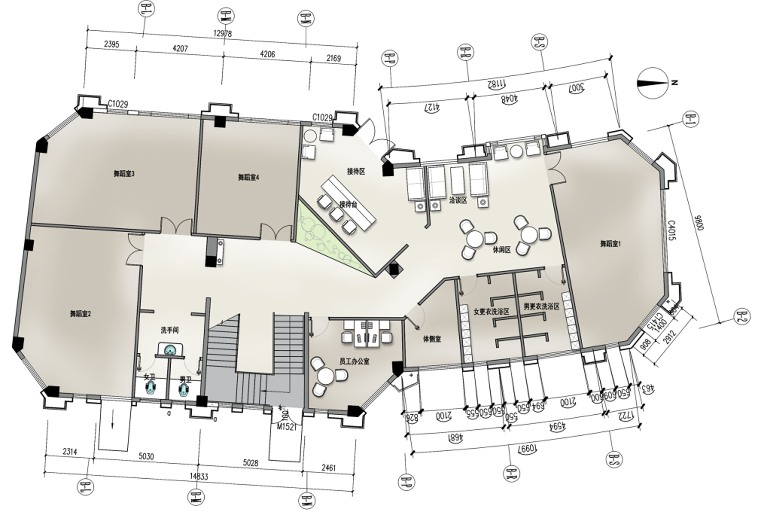
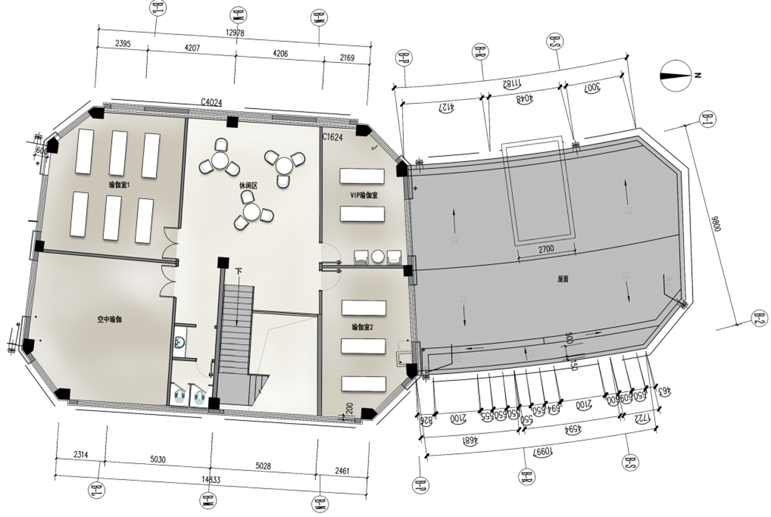
瑜伽舞蹈会所

Yoga Dance Club