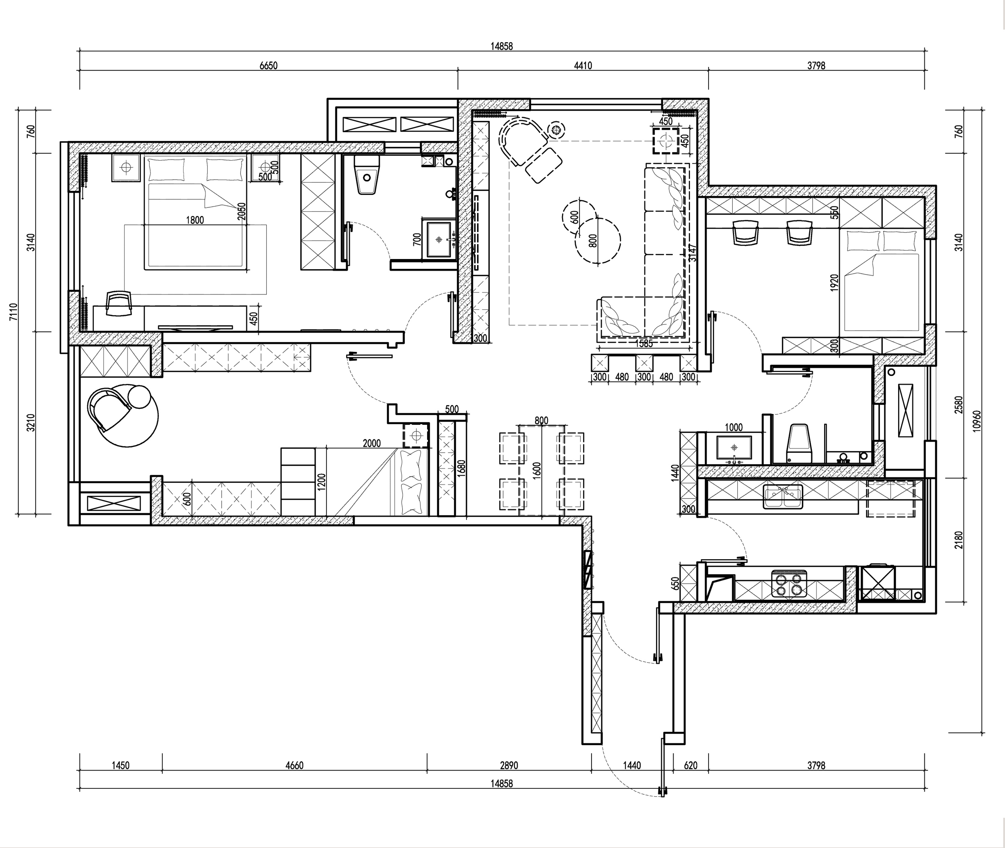
6玺园定制住宅

Xiyuan Customized Residence