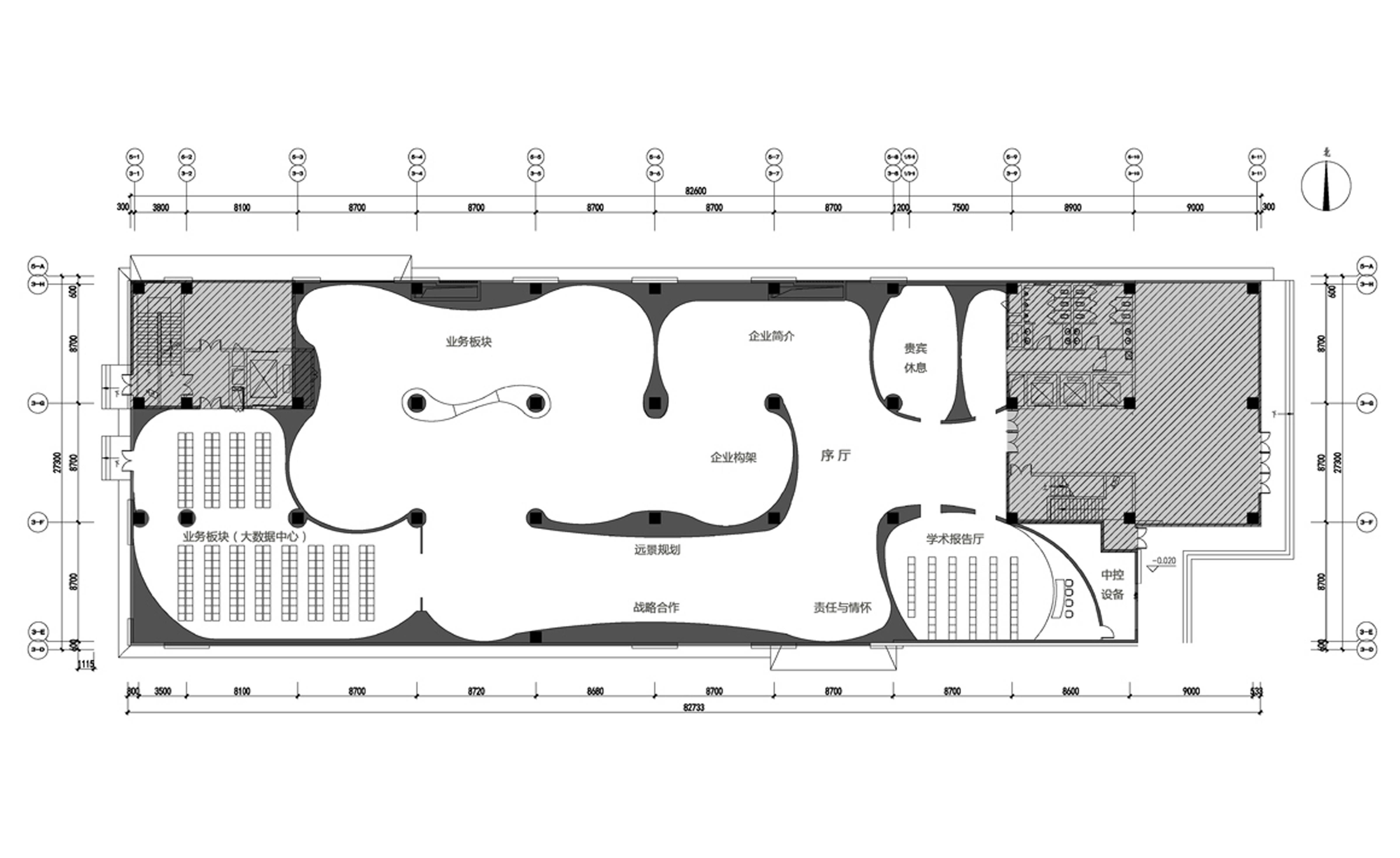
昂睿生物科技展览馆

Angrui Biotechnology Exhibition Hall